
Miete die Workshop-Scheune!
Hier kannst du die komplette Workshop-Scheune für dich und dein Team für einen oder mehrere Tage mieten.
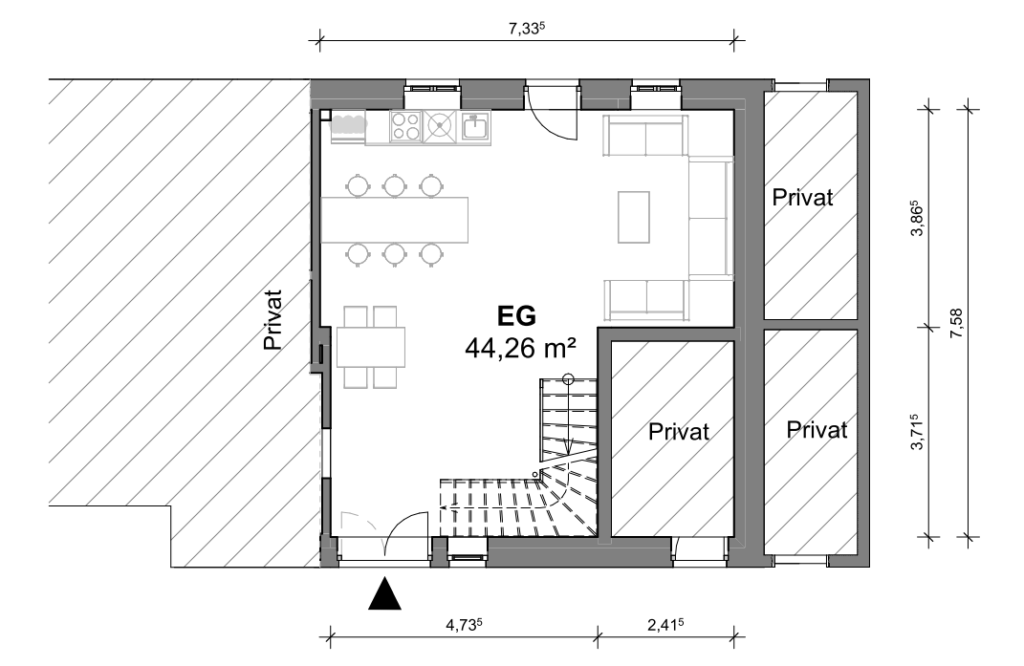
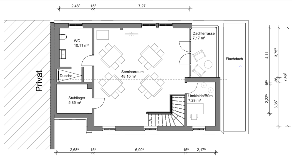
Auf zwei Etagen mit insgesamt rund 120 Quadratmetern habt ihr jede Menge Platz zum Workshoppen und um gemeinsam zu arbeiten.
Die Scheune ist ideal für eine Gruppengröße von 6-12 Personen, zur Not gehen auch bis 16 Personen.



Im Basispreis enthalten:
- Nutzung der Räumlichkeiten auf zwei Etagen für einen Tag (8-18 Uhr)
- Benutzung der Küche
- Endreinigung
- Beschreibbare Wände im OG
- Bestuhlung wie vorab gewünscht
- Flipchart und weiteres Moderationsmaterial in üblichem Umfang
- Getränke nach Verbrauch (Preisliste hängt aus)
Basispreis: 460 € / Tag zzgl. MWSt.

Gegen Aufpreis bekommt ihr:
- Kaffee, Tee und Softdrinks inklusive für 15 € p.P.
- Beamer
- Bluetooth-Box
- Catering
- Moderation durch Sonja Sinz als Teamcoach
Grundrisse


Übernachtungsmöglichkeiten
Falls es Teilnehmende gibt, die hier in der Gegend übernachten möchten, dann empfehlen wir diese Ferienwohnungen und Unterkünfte ganz in der Nähe:
- Dammholmer Ferienwohnungen (4 Wohnungen für je 2-4 Personen, wenige Kilometer von hier)
- Ferienhaus Hof Osterfeld (ein Haus zum Teilen für bis zu 10 Personen, wenige Kilometer von hier)
- Hof Osterbunsbüll (diverse Ferienunterkünfte, 15 Minuten mit dem Rad, 7 Minuten mit dem Auto entfernt)
- Super schöne Wohnungen und Häuser gibt es auch bei „Hyggebuden„, z.B. in Flensburg (15-20 Minuten von hier) oder in Streichmühle (25 Minuten von hier)
- Das Akademiezentrum Sankelmark bietet Einzel- und Doppelzimmer und ist ideal für Gruppen, die sich weniger gut kennen und sich keine Ferienwohnung teilen mögen (12 Minuten von hier).
Buchungsanfrage
📆 Den Belegungsplan für die Scheune kann man hier im offiziellen Kalender der Workshop-Scheune einsehen. So ist es leicht, herauszufinden, welche Tage noch frei sind.